Bestill katalog
Bestill katalog

Hytte Viste

Viste-hytta er en moderne og lys funkishytte som tilbyr alle fasiliteter på ett plan. Dette er en akkurat passe stor hytte med et bruksareal på 74,4 m2.

  • BRA 96,2
  • P-rom
  • 2

Moderne hytte med romslige og innbydende sosiale områder

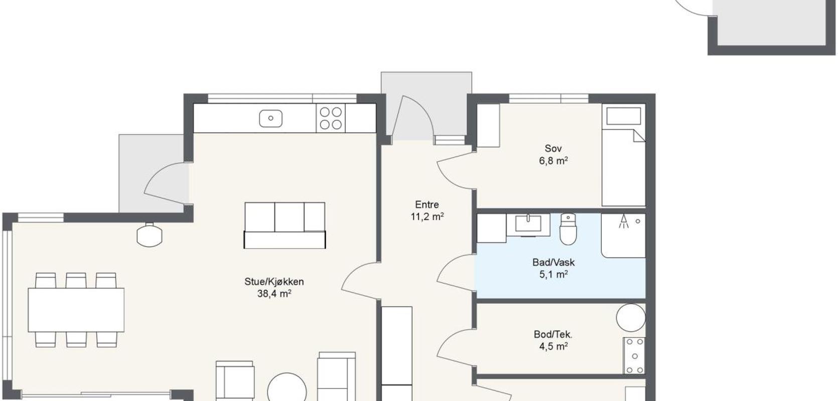
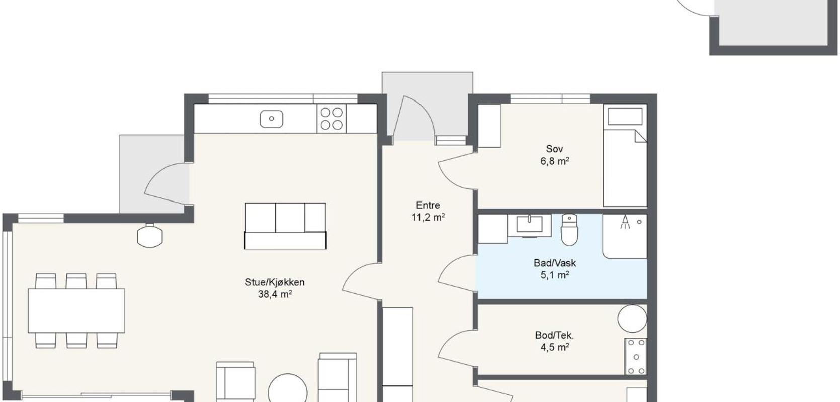
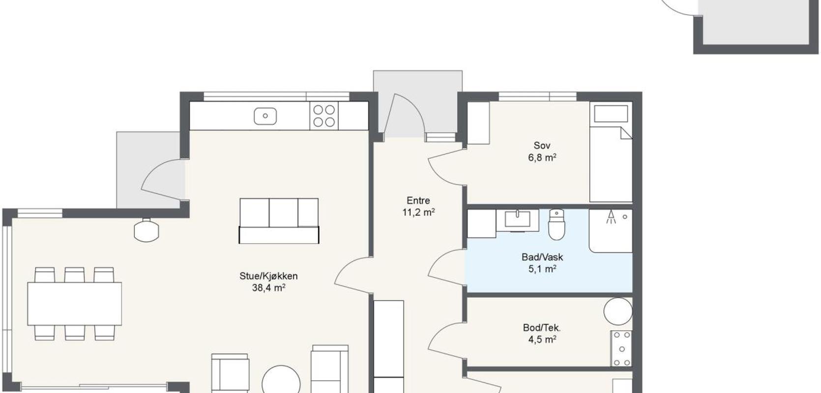
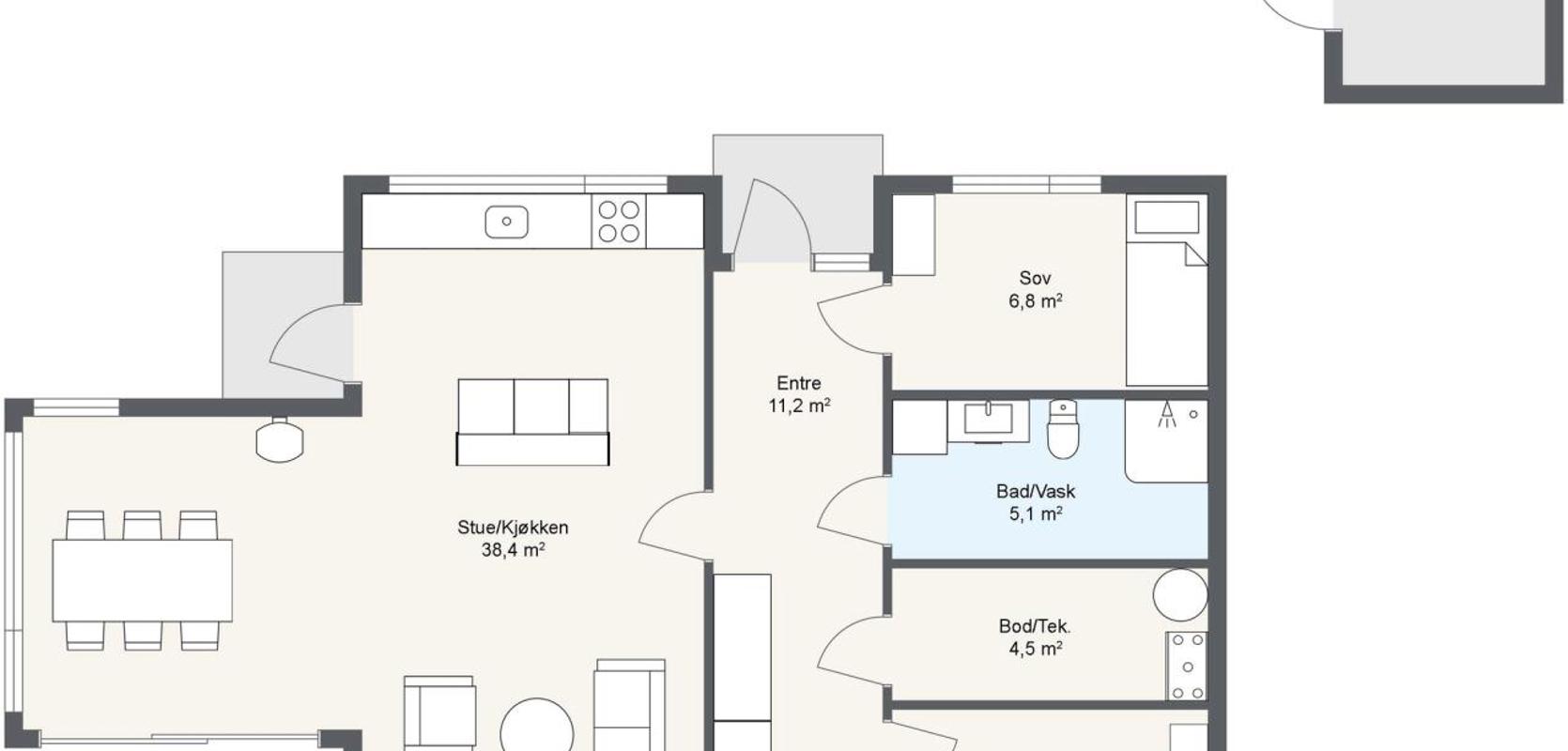
Hytta har en romslig og funksjonell gang med god plass til et stort garderobeskap. Fra gangen er det tilgang til alle de andre rommene.

På den ene siden av gangen finner du to komfortable soverom, med badet og det tekniske rommet/boden strategisk plassert mellom dem. Badet er utstyrt med en dusjsone, toalett, servant i skap og vaskemaskin. På den andre siden av gangen trer du inn i hyttas sosiale sone, som består av stue, kjøkken og spiseplass.

Funkishytta har en svært praktisk og åpen stue- og kjøkkenløsning. Her er det god plass til en kjøkkenøy og ikke minst en romslig spiseplass. Kjøkkenet har også en egen utgang til utendørsområdet i vest og nyter godt av rikelig naturlig lys som strømmer inn over arbeidsbenken i nord.

Funkishytte med store vinduer og pergola

Funkishytta er utstyrt med store vinduer som gir rikelig med naturlig lys, og når hytta er plassert på en vakker tomt, fungerer vinduene som et levende maleri.

Med direkte tilgang til uteplassen fra spiseplassen via en skyvedør, kan du enkelt nyte hyttas terrasse og utendørsområde. Pergolaen som kaster skygge over terrassen gir hytta et moderne særpreg og skaper en definert og koselig utendørs atmosfære.

I tillegg har hytta en romslig separat bod på hele syv kvadratmeter, som gir muligheten for ekstra soveplass. Uteboden definerer sammen med hytta et avgrenset tun ved adkomst.

Bestill hyttekatalog

Terrengtilpasning

Viste-hytta behøver en flate på ca 20 meter i lengde og 17 meter i bredde i landskapet. Hytta er designet med tanke på plassering ved sjøen, men den kan like godt tilpasses til fjellområder eller skogkledde landskap.

Hytta er også utformet med hensyn til tilgjengelighet i hovedplan, og dette gjør den praktisk og funksjonell for alle.

* Alle bilder og illustrasjoner er til inspirasjon og kan avvike fra endelige tegninger.

Ta kontakt med forhandlet
}